Joinery

Detailed joinery drawing pre and proposed for listed building planning consent

Door lining / frame 1:1 detailed to scale drawing
showing existing and proposed detail
again for listed building / planning consent and for the joinery shop to replicate

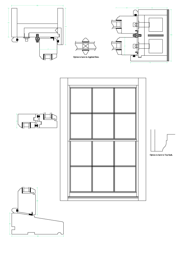
floor by floor window and door detailed drawing required by listed building consent / planning this drawing is also handy for the builders so that they know which doors and windows are marked for each area
this was supported with a detailed written to support the elevation drawings plus the glass / glazing costings and type
there are various drawing scales used to show general and close up detail on 1 plan / drawing

again another detailed drawing for listed building consent and the joinery shop
plus pre manufacture glazing estimates especially as these had to be slimline to meet conservation / heritage required

an example of the type of drawing that we here ar arkeytecture.uk can produce

joinery detail required for a listed building planning application

glazing bar 1 : 1 scale fine detail proposed new style glazing bar to carry slimline sealed double glazed units

End of Joinery webpage
Home Joinery 3D Models Elevation Plan 2 Structural Likes About W.D.I.T.O.T.